Piso en venta

Cordoba, Levante - Lepanto - Fátima
179.900 €
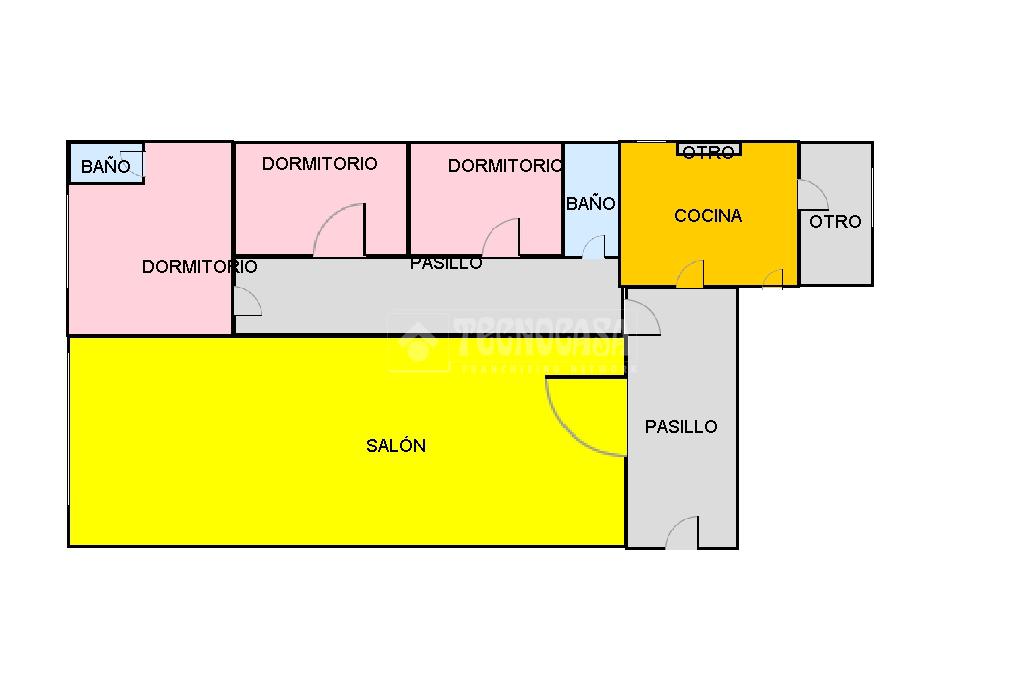
3 dormitorios 3 dormitorios
110 m2 110 m2
2 baños 2 baños

Piso en venta

Cordoba, Levante - Lepanto - Fátima

Descripción anuncio

¡¡¡ GRAN OPORTUNIDAD EN ZONA SAGUNTO!!!

Te presentamos esta vivienda con 110 m2 CON ASCENSOR , Totalmente reformada.

consta de:

-3 Dormitorios.

-2 Baños.

- Cocina equipada.

- Salon Amplio.

- Trastero.

Descubre esta acogedora vivienda de 110 m2 CON ASCENSOR totalmente reformada. Esta propiedad ofrece un espacio cómodo y funcional para tu familia. Cuenta con tres dormitorios bien distribuidos, ideales para el descanso y la privacidad. El salón es amplio, perfecto para disfrutar de momentos en familia o con amigos. La cocina está equipada y lista para su uso, facilitando el día a día. Los baños son completos y están en buen estado.

Escríbenos al 640515947 para mas información.

Piso exclusivo de Tecnocasa, la inmobiliaria de Córdoba que te ofrece:
-Posibilidad de financiar tu vivienda el 100% gracias a nuestra financiera Kiron.
-Un asesoramiento personalizado por agente exclusivos de la zona.
-Exclusividad, no encontrarás este inmueble en otras inmobiliarias.
-Te atenderán profesionales con un amplio conocimiento del mercado local y del barrio de Fátima y Sector Sur-Campo de la Verdad. Trabajamos en exclusiva.
-Amplio horario comercial que se adapta a tu tiempo disponible.
-Reunión con los propietarios para conocer el inmueble al detalle.
-Servicio postventa.
Recuerda, se trata de la oportunidad de conseguir una completa vivienda familiar para vivir confortablemente en la ciudad de Córdoba
Precio que puedes financiar el 100%

Ver más

Características

Ref.:
650403
Planta:
3
Aire acondicionado:
Independiente
Ascensor:
Calefacción:
Independiente
Libre:
No
Ver más
Precio Precio
179.900 €
Cuota mensual Cuota mensual
€ 580 / mes

Clase energética

Este inmueble está esperando clase energética
Año de construcción:
1987

Servicios cercanos

Transporte público Transporte público
Córdoba
Córdoba
2,7 Km
Sagunto
Sagunto
70 m
Sagunto (Fernando IV)
Sagunto (Fernando IV)
200 m
Colegios Colegios
Colegio Franciscanos
130 m
C.E.I.P. Los Califas
200 m
I.E.S. Blas Infante
230 m
C.P.I.P.S. Juan Rufo
400 m
Crisan Formación
400 m
Farmacias Farmacias
Farmacia
100 m
Cinco Caballeros
340 m
Farmacia Ldo. Pedro Moreno
820 m
Farmacia
1,2 Km
Farmacia-Ortopedia
1,5 Km
Hospitales Hospitales
Cruz Roja
2,7 Km
Supermercados Supermercados
Deza
390 m
Piedra
630 m
Mercadona
670 m
Supermercado Piedra
770 m
Lidl
960 m
Tiendas Tiendas
Tiendas
460 m
Piedra
500 m
Me Gusta
580 m
La Cosecha
1,3 Km
Roldan
1,4 Km
Bar Bar
The Brothers
450 m
Cafetería
1,1 Km
Motor Soul
1,3 Km
Jugo
1,5 Km
El Limbo
1,6 Km
restaurantes restaurantes
Bar Julian
190 m
Rafalete Cordoba
270 m
Noor
500 m
La Trasera
570 m
Meson Los Tamicos II
610 m
Ver más

Calcula tu hipoteca

Simple y sin compromiso
Entrada
%
al mes
Hipoteca
%
El resultado de esta simulación es orientativo. Los datos indicados no corresponden a condiciones reales de productos y no implican compromiso, obligación o vínculo jurídico-legal para el Grupo Tecnocasa.

Solicita un asesoramiento

Introduce tus datos
GRACIAS POR CONTACTAR CON NOSOTROS.
Esta oficina de Kìron se pondrá en contacto contigo lo antes posible para ofrecerte un asesoramiento financiero más completo y acorde a la información que nos has facilitado.
Franquiciado
Desarrollo Levante Cordoba Sl
Calle Sagunto, 4 Local 14007 Cordoba (CO)
Calle Sagunto, 4 Local 14007 Cordoba (CO) Zona: SAGUNTO - EDISOL
LUNES A VIERNES MAÑANA 9:00 H-14:00 H TARDES:17:00 H 20:00 H SABADO DE 10:00 H A 14:00 H

Nuestro equipo


  • Lucía Ortega Escote
    Colaborador

  • Enrique Perez Gonzalez
    Colaborador

  • Rafael Jesús Aranda Rojas
    Franquiciado

  • Arlen Velasquez
    Auxiliar Administrativo

  • Antonio José Criado
    Franquiciado
Franquiciado
Desarrollo Levante Cordoba Sl
Calle Sagunto, 4 Local 14007 Cordoba (CO)

Franquiciado
Desarrollo Levante Cordoba Sl
Franquiciado
Desarrollo Levante Cordoba Sl

2026 Ibero Group Tecnocasa Services, S.L.U. - CIF B-65870776 - C/ Pallars, nº 1-3 Parque de Negocios Mas Blau II, 08820, El Prat de Llobregat (Barcelona-España). Red en franquicia - Cada sociedad franquiciada tiene su propio titular y es independiente del franquiciador.

Política de privacidad | Aviso legal | Pólitica de las Cookies | Información al consumidor | | Canal ético